KK-SÄHKÖTUKKU - Pistorasiakeskus venesatama - FPC 040 16A IP55 AL

Kirjaudu sisään tai luo tili tarkistaaksesi hinnan ja tehdäksesi tilauksen
Tärkeimmät tuotetiedot
Suojaus - johdonsuojakatkaisija
Maavuotovahti - vikavirtasuojakytkin 30 mA (standardi)
Käyttö-/asennustavat - sähkötolppa
Väri - harmaa
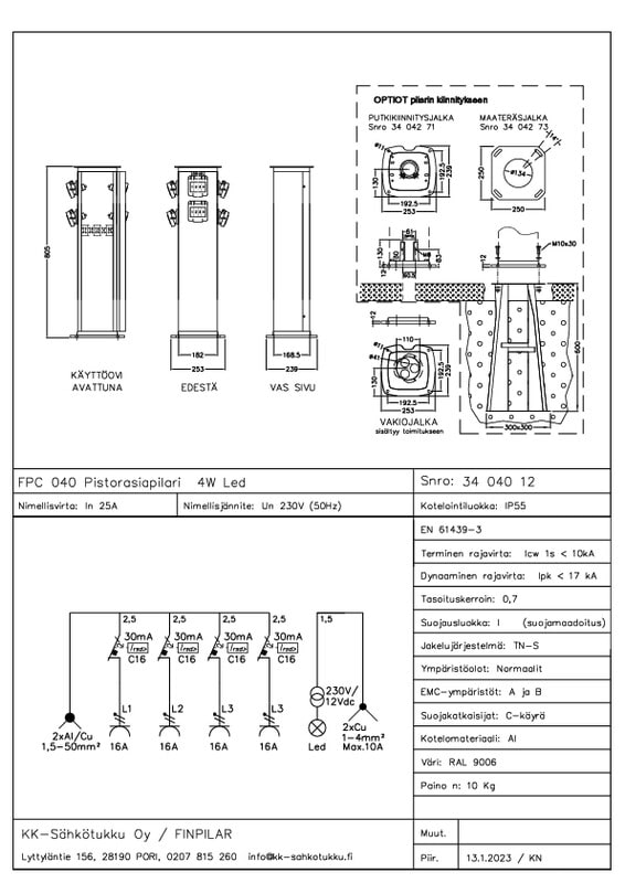
Korkeus - 810 mm
Pakkaus ja ehdot
1 kpl
Vakiokäyttötuote
EAN-koodi
6410034040127
Sähkönumero
3404012
Toimittajan tuotenumero
FPC040
Tukkuerä
1
Suojaus:
johdonsuojakatkaisija
Maavuotovahti:
vikavirtasuojakytkin 30 mA (standardi)
Käyttö-/asennustavat:
sähkötolppa
Väri:
harmaa
Korkeus:
810 mm
Leveys:
182 mm
Kotelointiluokka (IP):
IP55
Voimapistorasia (CEE) 16 A:
4x16A3p230V
Vikavirran tyyppi:
A
Johdonsuojakatkaisijoiden määrä:
4
Kotelon/suojuksen materiaali:
alumiini
Napaluku verkkoliitäntä:
5
Tuotekuvaus
FINPILAR FP, FPX ja FPC pistorasiapilari. Malliston tuotteet ovat parhaimmillaan pienvenelaitureilla, leirintäalueilla sekä julkisilla paikoilla; hautausmailla, kauppatoreilla ja yleisillä tapahtuma-alueilla. FINPILAR on moduulirakenteinen alumiinikoteloitu keskusjärjestelmä. Keskukset ovat kevyitä, mutta vahvarakenteisia (materiaalipaksuus 3,2 mm). Moduulirakenteissa käytetään sukopistorasioiden lisäksi CEE-17 järjestelmän mukaisia 16A - 125A pistorasioita.
Vakiomallien lisäksi valmistamme pilarit myös asiakkaan toivomalla kokoonpanolla, katso
- www.kk-sahkotukku.fi/suunnittelu.php





